+ 34 622 33 05 03

 

      Cabañas robustas y elegantes
 

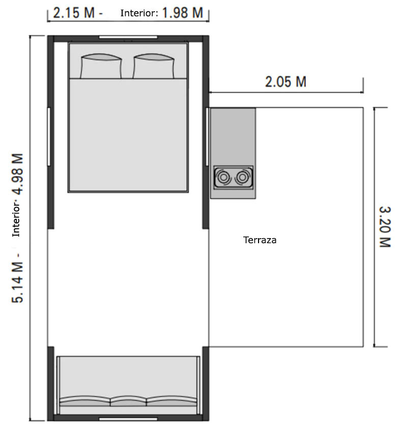
Plano funcional: cabaña hibrida de 16m² para alquileros cortos


 cabaña campista resumen de puntos importantes

Distribución inteligente para familias y viajeros