+ 34 622 33 05 03

 

      Cabañas robustas y elegantes
 


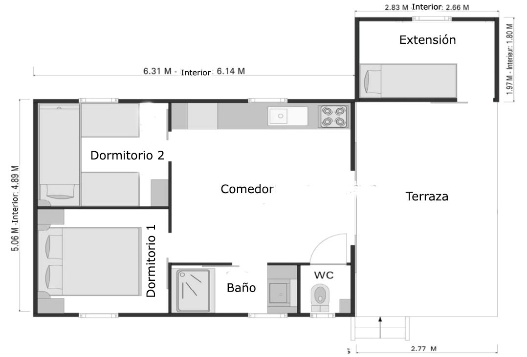
 cabaña captown family resumen de puntos importantes

Planos técnicos de cabaña 32m²: 4 dorm y terraza para negocio de ocio.